Wohnen in Iserbrook: Neubauwohnungen in Hamburg mit Weitblick
Mitten im lebendigen Iserbrook entsteht ein Rückzugsort, der den Blick öffnet für das Wesentliche: Raum, Ruhe und Qualität.
Das Neubauprojekt umfasst 46 moderne Wohnungen mit 2 Zimmer Wohnungen, 3 Zimmer Wohnungen oder 4 Zimmer Wohnungen. Ideal für Singles, Paare oder Familien, die eine Wohnung in Hamburg mieten möchten.
- Hochwertige Architektur in klarer Form
- Ruhige Rückseiten
- Begrünter Innenhof, Sitzbereiche & Dachterassen
- Hochwertige Materialien
- Kinderspielbereiche, Hochbeete & Fahrradstellplätze
- Idyllisch gelegen in Hamburg-Iserbrook, nahe Blankenese und den Elbvororten
- Mietbeginn ab Frühjahr 2026
Iserbrook Immobilien: Neubauprojekt Hamburg zwischen Gelassenheit und Anspruch
An der Sülldorfer Landstraße 1–3 entsteht ein Neubauprojekt in Hamburg, das urbane Qualität mit hanseatischer Zurückhaltung verbindet. Eingebettet in den grünen Stadtraum von Iserbrook (einem Elbvorort mit Nähe zu Blankenese) vereint das Ensemble städtisches Leben mit privater Ruhe und stilvoller Architektur.
Iserbrook gilt als Geheimtipp unter Hamburgs Wohnlagen: geprägt von Gärten, Villen und gewachsenen Nachbarschaften, mit eigener Infrastruktur und hervorragender Anbindung an die Innenstadt. Dort, wo Stadt, Natur und Gelassenheit aufeinandertreffen, bietet das Projekt einen Rückzugsort für Menschen, die Raum, Ruhe und Qualität zu schätzen wissen.
Adresse:
Sülldorfer Landstraße 1, 3a &
Schenefelder Landstraße 187
22589 Hamburg-Iserbrook
Wohneinheiten:
46
Wohnungsgrößen:
ca. 45 – 90 m², 1–4 Zimmer
Fertigstellung:
Frühjahr 2026
Besonderheiten:
Begrünter Innenhof, Dachterassen, Vollklinkerfassade
Verkehrsanbindung:
S-Bahn Iserbrook in fußläufiger Nähe, gute Anbindung an das Hamburger Zentrum & Freizeitmöglichkeiten an der Elbe
Hochwertige Ausstattung der Neubauwohnungen in Hamburg
Die Wohnungen bieten durchdachte Grundrisse und sind mit exklusiven Materialien ausgestattet.
Fahrradstellplätze
Spielbereiche
Hochbeete
Terrassen/Loggien
Neubauwohnung Hamburg mieten: Urban wohnen, ruhig leben
Wer eine Neubauwohnung in Hamburg mieten möchte, findet in Iserbrook die perfekte Kombination aus urbaner Adresse und ruhigem Wohnumfeld. Trotz der Lage an der Sülldorfer Landstraße orientieren sich viele Wohnungen zum begrünten Innenhof. Architektur, Begrünung und Materialität schaffen eine Atmosphäre, die modernes Wohnen in Iserbrook mit hoher Lebensqualität verbindet.
Wohnungen Hamburg Iserbrook & Blankenese: Vielfalt im Überblick
Das Neubauprojekt liegt im Herzen in einer der Elbvororte Hamburg und verbindet die Vorteile von Iserbrook und Blankenese. Wer nach Wohnungen in Hamburg Blankenese sucht, findet hier eine spannende Alternative. Hier findet jeder den passenden Wohnraum.
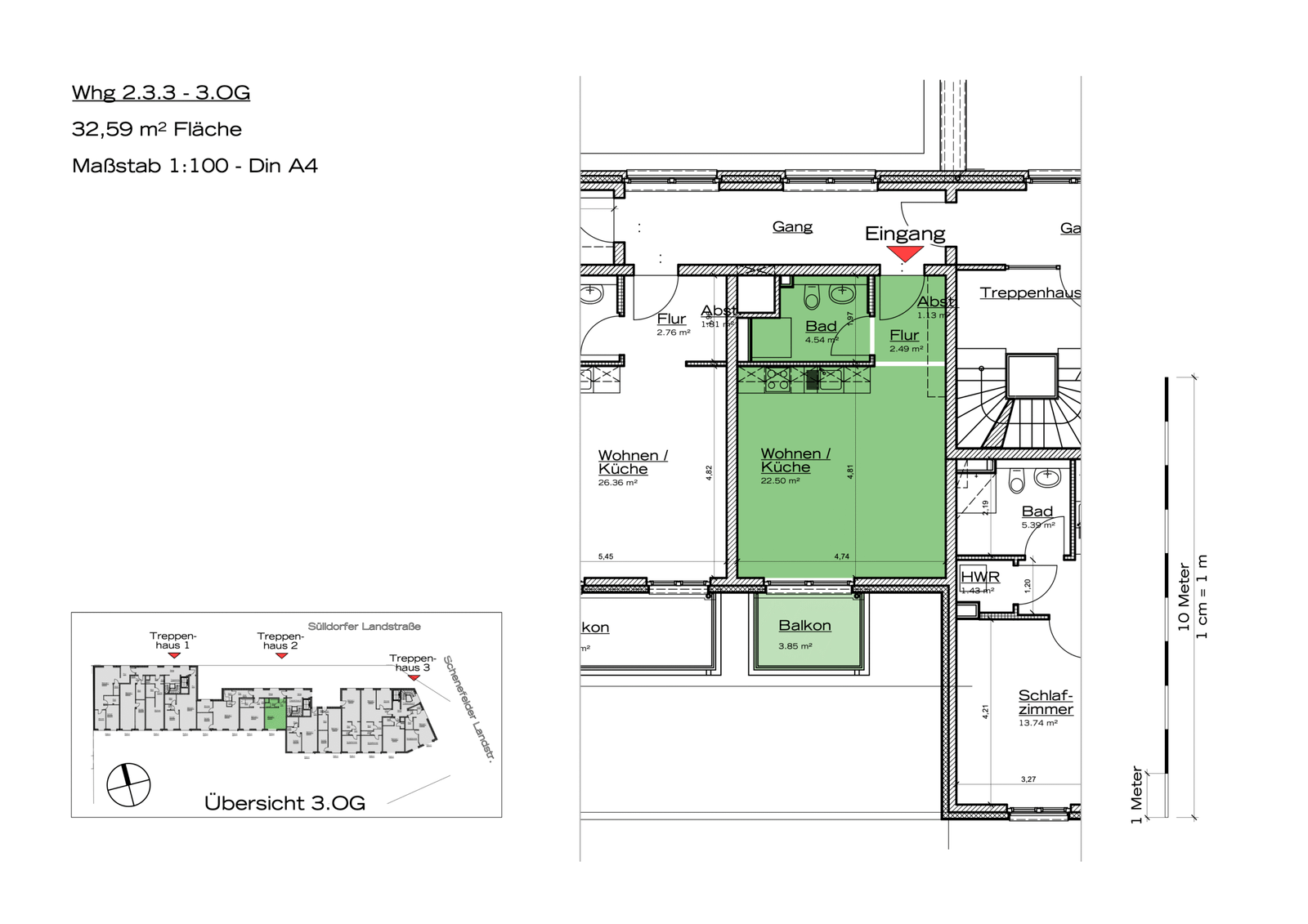
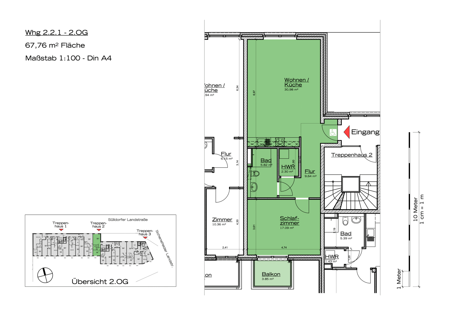
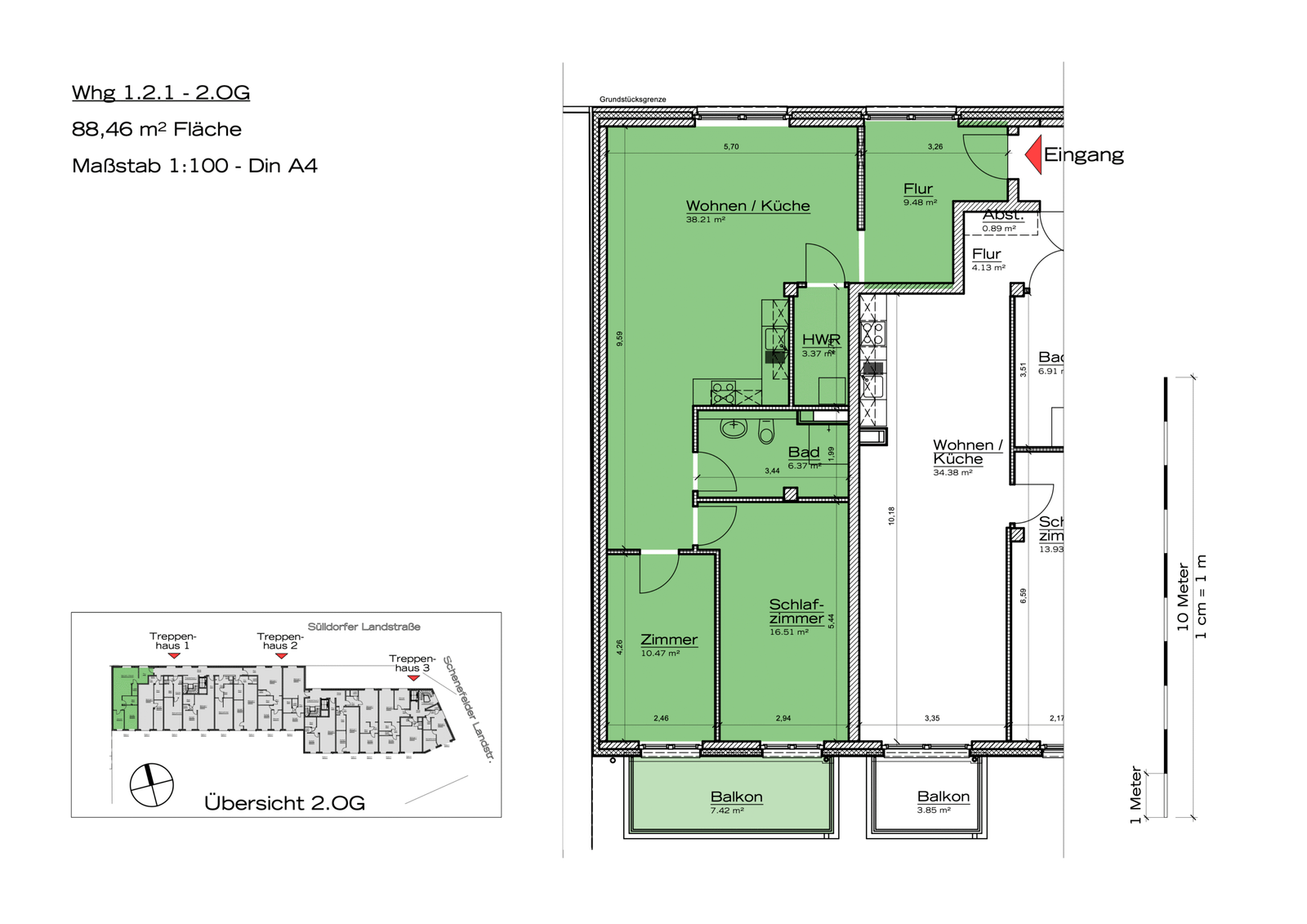
Etage 2 – Wohnung 1
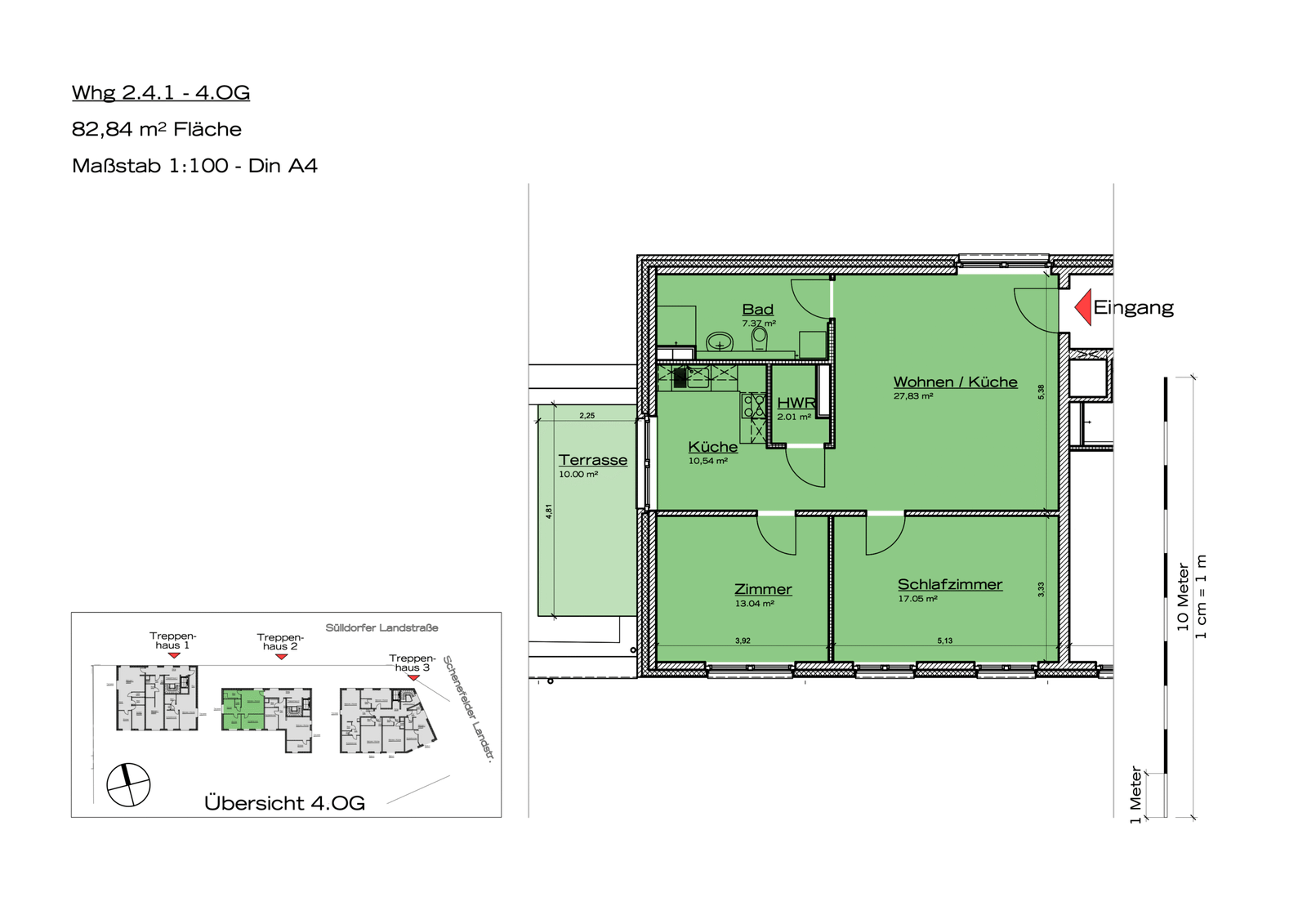
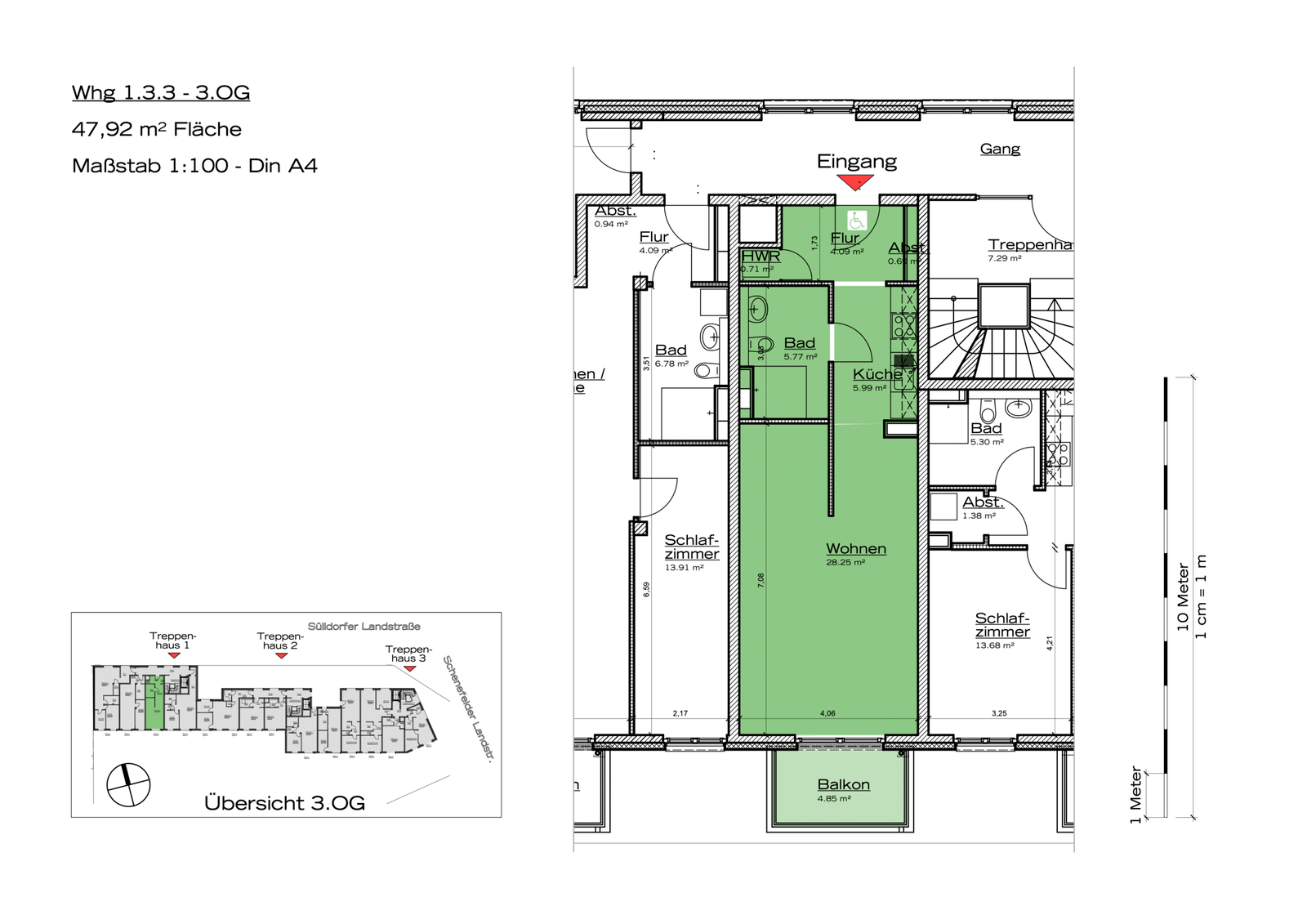
Etage 3 – Wohnung 3
Etage 2 – Wohnung 1
Etage 3 – Wohnung 3
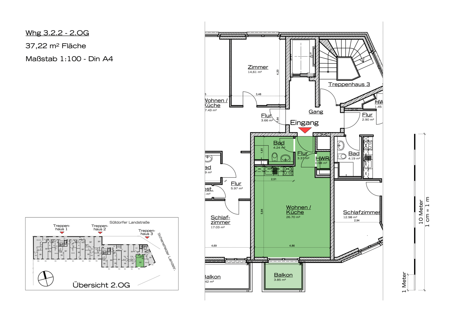
Etage 2 – Wohnung 2
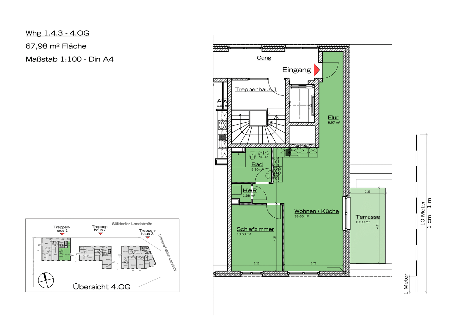
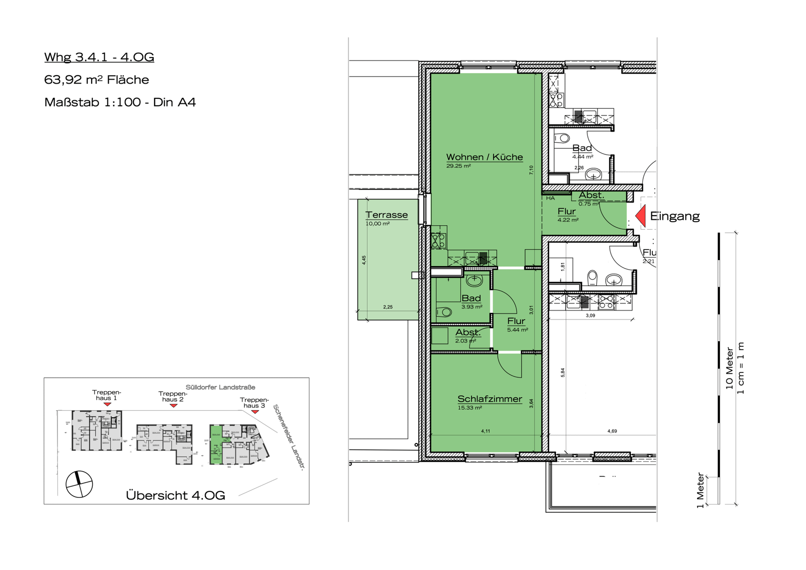
Etage 4 – Wohnung 1
Neubauwohnung in Hamburg Iserbrook mieten: Jetzt anfragen
Sie möchten ruhig wohnen, aber nicht aufs urbane Leben verzichten?
Dann finden Sie an der Sülldorfer Landstraße 1, 3a/Ecke
Schenefelder Landstraße 187 Ihr neues Zuhause.
Sichern Sie sich jetzt Ihre Neubauwohnung in Hamburg und profitieren Sie von moderner Ausstattung, grünem Wohnumfeld und bester Lage in einem der Elbvororte in Hamburg.
Jetzt direkt Kontakt aufnehmen, wir freuen uns auf Ihre Anfrage.



